Vendita €219.000,00 - Residenziale
L’ECCELLENZA ENERGETICA INCONTRA IL DESIGN MODERNO
Nel cuore di Vigevano, in zona residenziale tranquilla e ben servita, proponiamo un esclusivo appartamento di prossima realizzazione situato al primo piano di una palazzina signorile dotata di ascensore. L’immobile rappresenta lo stato dell’arte dell’edilizia moderna, certificato in Classe Energetica A4 per garantire il massimo comfort abitativo e il minimo impatto ambientale.
Distribuzione degli Interni (Layout Razionale)
L’immobile si distingue per una pianta ottimizzata e ambienti luminosi:
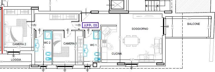
Zona Living Open-Space: Un ampio soggiorno con cucina a vista (oltre 33 mq) ideale per la convivialità, caratterizzato da una doppia esposizione che garantisce luce naturale costante.
Zona Notte Riservata: Un corridoio centrale conduce alle due camere da letto, garantendo massima privacy.
Camere da Letto: Una spaziosa camera matrimoniale (Camera 2) con accesso diretto alla loggia e una seconda camera (Camera 1) di generose dimensioni.
Doppi Servizi: Due bagni completi (WC 1 e WC 2), entrambi finestrati, posizionati strategicamente per servire sia la zona giorno che la zona notte.
Loggia e Balcone: Vivere l’Esterno
L’appartamento gode di due sfoghi esterni distinti:
Balcone di Servizio: Accessibile direttamente dalla zona soggiorno, ideale per creare un angolo verde o per la gestione quotidiana.
Loggia Coperta: Un ambiente esterno riparato e profondo, accessibile dalla camera padronale, perfetto per momenti di relax in totale riservatezza.
⚡ Dotazioni Tecniche e Innovazione
L’immobile è un concentrato di tecnologia:
Pompa di calore e sistema termoautonomo di ultima generazione.
Riscaldamento a pavimento e isolamenti termici/acustici certificati.
Infissi ad alte prestazioni energetiche.
Ascensore di ultima generazione che collega direttamente il piano autorimesse.
Perché scegliere l’Appartamento 03?
È la soluzione ideale per chi cerca una casa “chiavi in mano” dove ogni metro quadro è sfruttato al meglio. La doppia esposizione, i due bagni entrambi finestrati e la presenza di spazi loggiati lo rendono un prodotto raro sul mercato di Vigevano.
Possiibilità di box e posti auto coperti e scoperti.
Richiesta 219.000 € – RIf V001218
Dettagli aggiuntivi
- :




